
BODRUM BİTEZ YAZ EVİ
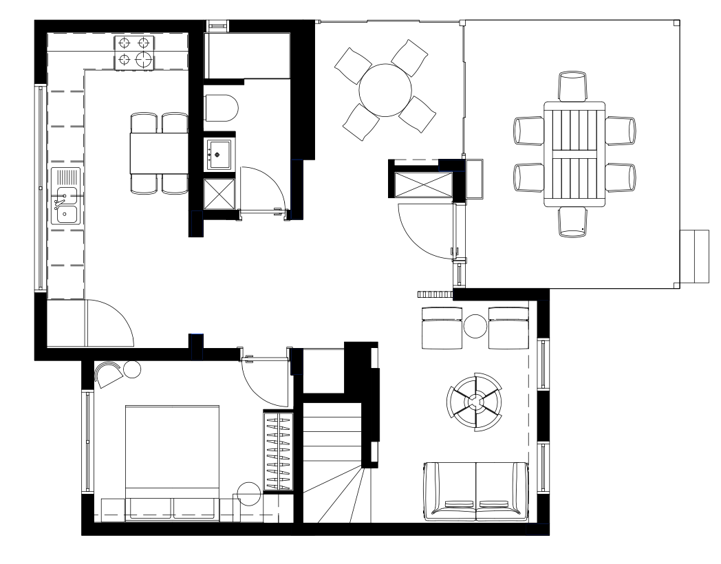
180 m2 büyüklüğündeki, iki kattan oluşan yazlık ev, bütünsel bir yaklaşımla yeniden tasarlandı. Yaşam alanları genişletilerek huzur ve rahatlık duygusunun birleşimi sade ve modern bir dille kullanıcılara yansıtılıyor. Yaşam alanlarında derinlik sağlamak amacıyla niş duvarlar, beyaz renkler ve açık meşe tercih edilirken, evde kullanılan detaylar su yeşili ve toprak tonlarıyla bütünleştirildi.






